电 话:18921540971
传 真:0510-88232460
地 址:中国江苏无锡市五洲工业博览城澳门街84-105-106
网址:

气动偏心半球阀
阀门型号:PQ640F,PQ640H
通径规格:DN25~DN300
结构形式:偏心旋转球芯
阀体材质:碳钢WCB、不锈钢304、不锈钢316
公称压力:PN10、PN16、PN25、PN40
适用温度:-20℃~450℃
应用范围:蒸汽、水、油品、气体、腐蚀性介质
产品特点:高性能、长寿命、启闭力矩小、V型切口具有切削功能
气动偏心半球阀简介:
PQ640H气动偏心半球阀具有开关无摩擦,密封不易磨损,启闭力矩小等特点,利用半球体围绕偏心轴心旋转来控制管路介质,在开关过程中,球体与阀座密封面之间不会产生摩擦,减少了密封件的磨损,大大提高了使用寿命。由于气动偏心半球阀的结构原理与三偏心蝶阀的运作形式极为相似,顾有人称偏心半球阀是一种球形阀瓣的蝶阀。

气动偏心半球阀特点:
1、PQ640H气动偏心球阀的球体和阀座完全脱离,消除了密封圈的磨损,克服了传统球体阀座与球体密封面始终磨损的问题,非金属弹性材料被嵌入金属座中,阀座金属面受到良好的保护。
2、气动偏心球阀的V型切口具有切削功能,在关闭时能将介质中的杂物(树枝、纺织袋等)切断,保证阀门正常启闭。
3、2、阀门的半球用双金属,母材上堆焊不同的合金,阀座也作相应堆焊经特殊的处理,密封面组合成防腐、耐磨、高强度等各种类型,满足不同场合需求。
4、气动偏心旋转阀特别适用于泥浆和含有纤维介质,以及含有微小固体悬浮物的介质,广泛应用于石油、化工、造纸、污水处理等管道中做开关切断或流量调节。
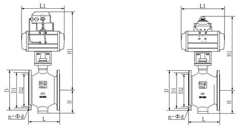
气动偏心半球阀技术参数:
| 公称通径 | DN25~DN300(MM) |
| 公称压力 | PN1.0、1.6、2.5、6.4MPa |
| 连接形式 | 对夹式、法兰连接 |
| 结构形式 | 直通偏心球形阀 |
| 驱动形式 | 压缩空气4-7bar(可带手动装置) |
| 阀体材质 | 碳钢WCB、不锈钢304、不锈钢316、316L |
| 泄露量Q | 软密封VI级、硬密封IV级 |
| 可调范围 | 全腔型(100:1)、60%腔型(60:1)、40%腔型(40:1) |
| 流量特性 | 近似等百分比 |
| 控制方式 | 开关型(开关两位切断),调节型(定位器4-20mA模拟信号) |
| 作用形式 | 单作用(弹簧复位)常开式,常闭式;双作用(无复位)气开气关 |
气动偏心半球阀原理说明(图):

气动偏心半球阀半球体中线与阀杆中线偏置尺寸,与阀座中线偏置尺寸,全开时球体与阀座完全脱开,并有一定的间隙,回转半径分为长半径和短半径,在长半径转动轨迹的切线会与阀座密封面形成一个Θ角,在阀门启闭时,半球相对阀座面有一个渐出脱离和渐入挤压的作用,从而降低了启闭时阀座与半球之间的机械磨损和擦伤,提高了使用寿命。